
关键词:室内 , 工业 / 品牌
KEY WORDS:INTERIOR , INDUSTRIAL , BRAND
汤圆的再认识
山山:“……我们中华小吃与国外食物的差别显然是不言而喻的,可是我一直在思考,中华小吃间的区别又是什么呢?汤圆、水饺、馄饨、粽子……很多人提到中华小吃容身的场所,就认为是青砖黛瓦古色古香的铺子,这对吗?一家卖汤圆的店难道和一家卖水饺的店没有差别?当我对每种传统食物进行思考,就发现了汤圆和其他中华小吃的不同。汤圆是纯粹的——它是唯一集正圆、纯白、正黑于一身的美食。”
初见汤圆,皮白如羊脂,形如正圆球体,一颗颗晶莹剔透,圆溜溜又胖鼓鼓的样子,灵动可爱。轻轻触碰它,软糯细腻,让人忍不住去品尝。咬一口,浓稠香甜的黑芝麻馅汁破皮溢出,馅如墨黑,香味绕梁。纯白、墨黑、正圆,赋予汤圆纯粹灵动的甜品形象。几近纯粹的几何形态,清澈分明的黑白本色,便是它与生俱来的秀气脱俗。抛开传统赋予汤圆的历史意义,从最初的开始,便让人区分开其他形状各异的传统美食,而记住它最初美好的样子。因为汤圆是世界上几乎不可再现的一种色泽黑白分明,形状正圆的食物。
汤圆总是讨孩子们的喜爱,这种喜爱不是出自吃了汤圆“团团圆圆”的社会文化熏陶,也不止是出于它的美味,而在于汤圆本身的纯粹。它圆得可爱,它白中有黑又黑白分明。这种纯粹是历史遗留下的基因,它既拥有中华传统的文化传承,又跳脱狭隘的地域束缚,它是最国际的也是最未来的。
山山:“我曾设想一个场景——一个球体被斜切一刀成为容器,它的肚子里藏着同样滚圆滚圆的汤圆,而被切去的那一半上升至空中,化身一盏半圆的灯投射在大白碗上,一颗颗圆滚滚的汤圆如精灵般在水中绽放光彩。这半圆形的大白碗恰好与正红的方桌相切,此时一群孩子跑来围着方桌,尝试去捞大碗里跳动的汤圆。捧着大白圆碗,你一颗我一颗地分享着汤圆……”
孩子本能的喜爱纯粹的方与圆,也似乎正方和正圆是天生的相互匹配,是最对立也最和谐的一对。“方”,拥有四边四角,代表四面八方,不曲不斜,泾渭分明,是规矩,是礼仪;“圆”,则具有高度的对称性,其形状增之嫌多,减之嫌少,唯此最为完备,匀称、稳定、和谐、灵活。“方与圆”承载着无穷无尽,取其形,用其韵,用最直接的方式表达与传承汤圆文化。






汤圆文化之黑与白
山山:“一场现代舞舞蹈剧——净白方盒似的舞台,所有的舞者都身着黑纱。灯灭,纯黑的现场,静谧的呈现。霎时,光的投射,一道、两道……不同的深度呈现不同的温度,舞台也随之绽放出不一样的色彩,黑与白在光的投射下变的五彩斑斓……”
一场舞台剧,让我们再次认识了黑与白,原本都是一样的存在,因为有了光,便有了黑,有了白,也会因为光的变化,绽放出五颜六色。黑与白将五彩缤纷的世界归纳为统一。其“黑”,深邃厚重,玄冥沧桑;其“白”,平和坦然,浩瀚柔婉。“黑与白”不是颜色,是最初,是无中生有的开始,是最贴近自然,最靠近灵魂的,是极致的美,相互渗透,相互转换,知黑守白。我们在设计中赋予空间黑与白的元素,因为有了光,便成了世界。
黑白、方圆与发生在时间和空间轴上的故事
黑与白、方与圆是设计的形,因为有了光,黑白在方寸之间,形成了时间和空间的纬度轴。“光”代表时空的穿越,结合时间与空间,设计中采用框与光带的方式,有导向性指引,同时定格时间与空间轴上的故事,记录过去的记忆、现在的场景、未来的瞬间。


黑白方圆的完美诠释
食物与容器——餐具设计
餐具是承载食物的空间,家具又承载餐具,家具被建筑包含,建筑又归于城市。从餐具到城市,层层包含,相邻层级中,一方为另一方提供“空间”,或者说,一方是另一方的“容器”。并且这些“空间”之间还有“空间”,“容器”之间还是“容器”。这些“之间的空间”又被彼此的形状、尺度所影响,产生弹性互动。基于此,既能规划一座超大型城市,也能诞生一组精巧的餐具。
将空间规划理念微观运用,并借此尝试容器的组合尺度,对人的行为、食物,和空间视觉的影响。餐具主体由一系列相同模数的方碟组成,并根据所盛食物分为深、浅、平三种高度;辅助餐具外径取模数的1/2。其中汤圆碗作为唯一的非正交餐具(两个可相互契合成球型的圆碟,并以45°斜切,使两者均具有方向性和个性诉求)在理性规划的BLOCK中占据主体地位。当餐具陈列于桌上,餐桌被无形的正交轴线划分成等量区域,辅助区域则在更小的层级上被二次分割,不同餐品置于事先设计好的“规划区域”内,不仅在尺度把握上体现用心,更有“相配、适量”的膳食理念隐含其中。几何原理同美食逻辑完美暗合。

人与食物——桌椅设计
食物是人与世界交流的方式,微不足道却又无处不在,传达着情怀,蕴藏着文化。人与食物有着千丝万缕的微妙关系,而人与食物的美好关系则需要人去理解它、尊重它,体会食之味、食之趣和食之美。桌椅是人与食物间联系的重要媒介,运用方圆黑白的空间元素在用餐桌椅的设计中,规整用餐行为与状态,遵循餐桌礼仪,升华人与食物的美好关系。
人与空间——空间即人与故事的记录
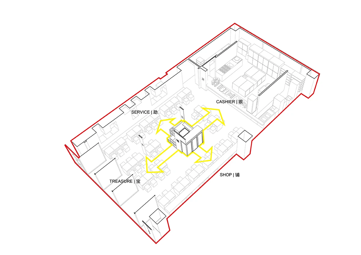
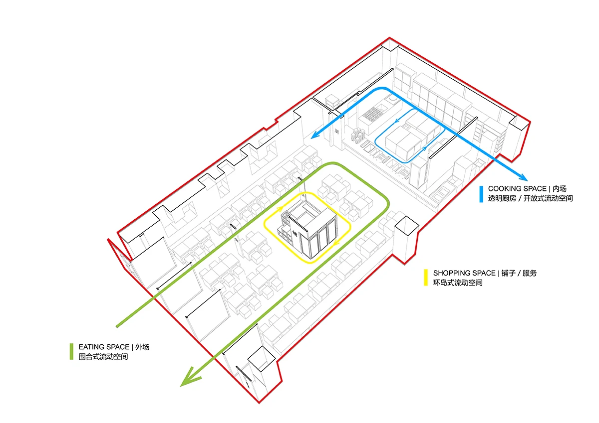
汤圆的甜美,暖暖家的温馨在空间形式中完美呈现。中岛是外场的中心,像是主人家中的圣诞树,大家围合在这谈笑风生,分享喜悦。树下一系列店铺杂货似乎是圣诞礼物,以供顾客伴手把幸福延续到家。开放式厨房与灵动的空间流线,拉近你我的距离,更似家的感觉,热情的为来自五湖四海的朋友,献上一份温暖放心的美食。
聚合 | 热点 | 流线
聚合-具有中心围合感的“家”/ FAMILY SPOT

热点-“家”围合感的扩散 / HOT SPOT

正在进行时…… / PROGRAM

动线 / CIRCULATION

百年老字号缸鸭狗2016第一门店








